【鯖江市】糺町分譲B棟/2026年5月完成予定

外観
周辺環境

【TATEURiE】(石友ホームグループ)2026年5月完成予定  暮らしが自然と整う、やすらぎの「平屋の家」駐車4台可!3LDK あたたかな光を感じるLDK16帖♪白蓮保育園徒歩11分♪生活施設充実

価格
3,114万円 (負担金含・税込)
月々返済額
69,600

※全額借入(頭金・ボーナス払いなし)
※地方銀行・紹介ローン・融資限度額2億円以内・固定金利指定型(2年)金利0.35%・返済期間40年にて算出した一例です。
※返済金額はシミュレーションによるもので金融機関や諸条件により異なります。
※月々返済例は当初2年間の返済額であり、当初期間後の月々返済額を保証するものではありません。
※ローンは一定要件該当者が対象です。適用される金利は融資実行時のものとなり、表記されている金利・返済額と異なる場合があります。

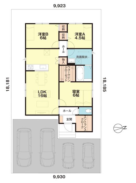
間取り
3LDK
土地面積
180.48㎡
建物面積
77.67㎡
交通
【バス】糺橋東 停歩4分
 

間取り・外観/内観・周辺画像

 
 

物件概要・詳細

 
物件名 【鯖江市】糺町分譲B棟/2026年5月完成予定
間取り 3LDK
交通 【バス】糺橋東 停歩4分
所在地 福井県鯖江市糺町
土地面積 180.48㎡
建物面積 77.67㎡
完成時期(築年月) 2026年3月
土地権利 所有権
都市計画 非線引区域
用途地域 -
地目・地勢 宅地・平坦
建ぺい率・容積率 60%・150%
接道状況 南 6.0m 公道 接面10.5m
構造・工法 木造平屋建
備考・特記事項
情報公開日 2025年12月11日
次回更新予定日 2025年12月25日
物件管理店舗 フレンドリーハウス福井店
 
 

周辺環境

 
鯖江市立神明幼稚園
… 距離:860m
白蓮保育園
… 距離:880m
鯖江市立神明小学校
… 距離:1,600m
鯖江市立中央中学校
… 距離:1,340m
バロー神明店
… 距離:540m
公立丹南病院
… 距離:970m
セブンイレブン鯖江石田上町店
… 距離:850m
クスリのアオキ神明店
… 距離:460m
 

周辺地図

 
 

物件お問合せフォーム

 
会場必須
【鯖江市】糺町分譲B棟/2026年5月完成予定
希望日時必須
第1希望
    第2希望
      第3希望
        お名前必須
        ふりがな必須
        ご年齢任意
         歳
        ご職業任意
        ご住所任意
        お電話番号必須
        メールアドレス必須
        ご意見・ご質問など任意
        ご連絡がつきやすい時間帯任意
        個人情報について必須
        個人情報の取り扱いについて同意する

        ご入力いただいたメールアドレスへ自動で確認メールを送信しております。
        メールアドレスの誤入力やご利用の携帯キャリアの設定等により、確認メールが届かない場合がございます。
        確認メールが届かない場合は、お手数ですがメール以外の連絡方法を追記の上再度お問い合わせいただくか、お電話でお問い合わせいただきますようお願いいたします。