【富山市】高木西の家1号棟

「ママスキーとインカムハウスのコラボハウス」2025年10月4日~12月27日迄にご成約の方は建物価格より25万円値引き!3LDK+書斎 家具付♪スーパ徒歩2分!呉羽駅徒歩4分、呉羽小学校徒歩14分♪
- 価格
- 3,654万円 (負担金含・税込)
- 月々返済額
- 81,600円
※全額借入(頭金・ボーナス払いなし)
※地方銀行・紹介ローン・融資限度額2億円以内・固定金利指定型(2年)金利0.35%・返済期間40年にて算出した一例です。
※返済金額はシミュレーションによるもので金融機関や諸条件により異なります。
※月々返済例は当初2年間の返済額であり、当初期間後の月々返済額を保証するものではありません。
※ローンは一定要件該当者が対象です。適用される金利は融資実行時のものとなり、表記されている金利・返済額と異なる場合があります。
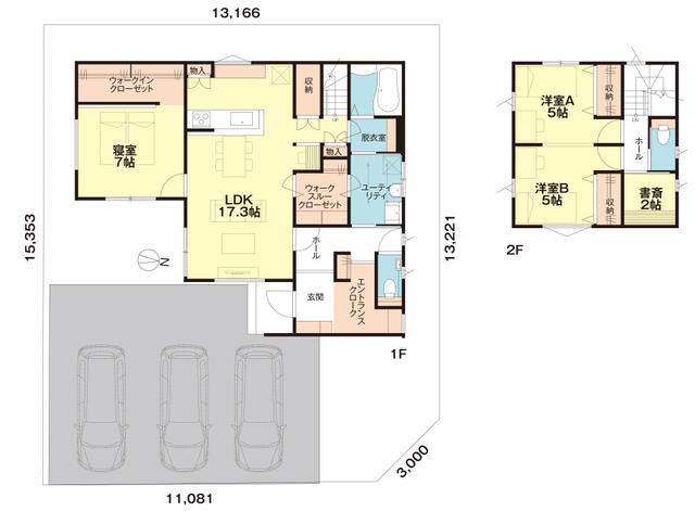
- 間取り
- 3LDK
- 土地面積
- 200.09㎡
- 建物面積
- 105.75㎡
- 交通
- 「呉羽」駅 徒歩4分
間取り・外観/内観・周辺画像
物件概要・詳細
物件名 | 【富山市】高木西の家1号棟 |
---|---|
間取り | 3LDK |
交通 | 「呉羽」駅 徒歩4分 |
所在地 | 富山県富山市高木西 |
土地面積 | 200.09㎡ |
建物面積 | 105.75㎡ |
完成時期(築年月) | 2024年11月 |
土地権利 | 所有権 |
都市計画 | 市街化区域 |
用途地域 | - |
地目・地勢 | 宅地・平坦 |
建ぺい率・容積率 | 60%・200% |
接道状況 | 北 6.0m 公道 接面13.2m・東 6.0m 公道 接面14.0m |
構造・工法 | 木造 |
備考・特記事項 | |
情報公開日 | 2025年9月25日 |
次回更新予定日 | 2025年11月3日 |
物件管理店舗 | インカムハウス富山店 |
周辺環境
- 呉羽幼稚園
- … 距離:760m
- 富山市立呉羽小学校
- … 距離:1,120m
- 富山市立呉羽中学校
- … 距離:1,400m
- 原信呉羽店
- … 距離:140m
- くれはキッズクリニック
- … 距離:1,370m
- スギドラッグ呉羽駅北店
- … 距離:160m
- DCM呉羽駅北店
- … 距離:450m
- 呉羽駅北口
- … 距離:260m